VIERQUADRAT  ARCHITEKTEN

       

ARCHITEKTEN UND INGENIEURE  

Referenzen A - Z

A  B  D  E  F  G  H  I  J  K  L  M  N

O  P  Q  R  S  T  U  V  W  X  Y  Z

        Alle Leistungen
von der Idee bis zur Fertigstellung
  

Planung und Bauleitung

Neubau/ Umbau
Gutachten
Barrierefrei
Altersgerecht
Ökologisch
Wohnen, Arbeiten, Leben  in Räumen
 zum Wohlfühlen

Gebäude und Freianlagen
Städtebauliche Leistungen
Innenarchitektur
Wettbewerbe
Visualisierungen

Architektur      

Anerkennung Thüringer Holzbaupreis 2007    

Neubau Einfamilienhaus,            

zweigeschossiger Hauptkörper 

mit einem Sattel-Kaltdach,

Holzrahmenbau mit Zellulose- 

und Holzfaserdämmung, 

Kellergeschoss aus Leichtbeton;

schieferfarbene, hinterlüftete 

Holzfaserverkleidung; 

Dachkonstruktion: Dreieck-Holzbinder, 

untere Seite der aufgesetzten Binder

= obere Dämmebene des Gebäudes,

Wintergartenvorbau über zwei Ebenen 

teilweise als Stahlkonstruktion mit 

Pfosten-Riegel- Glaskonstruktion

Gebäude öffnet sich über den Wintergarten

großflächig nach Süden u. Südwesten

zur barrierefrei angrenzenden

Holzterrasse und dem Garten;

 

Anbau mit flachgeneigtem Gründach,

nach Süden 1.25 m Dachüberstand 

= sommerlicher Wärmeschutz

Gebäude als offener Raum 

über zwei Ebenen

mit „eingesetzten“ Raumstrukturen;

Fenster (Dreifach- Verglasung) aus

Lärchenholz mit äußerer Alu-Verkleidung

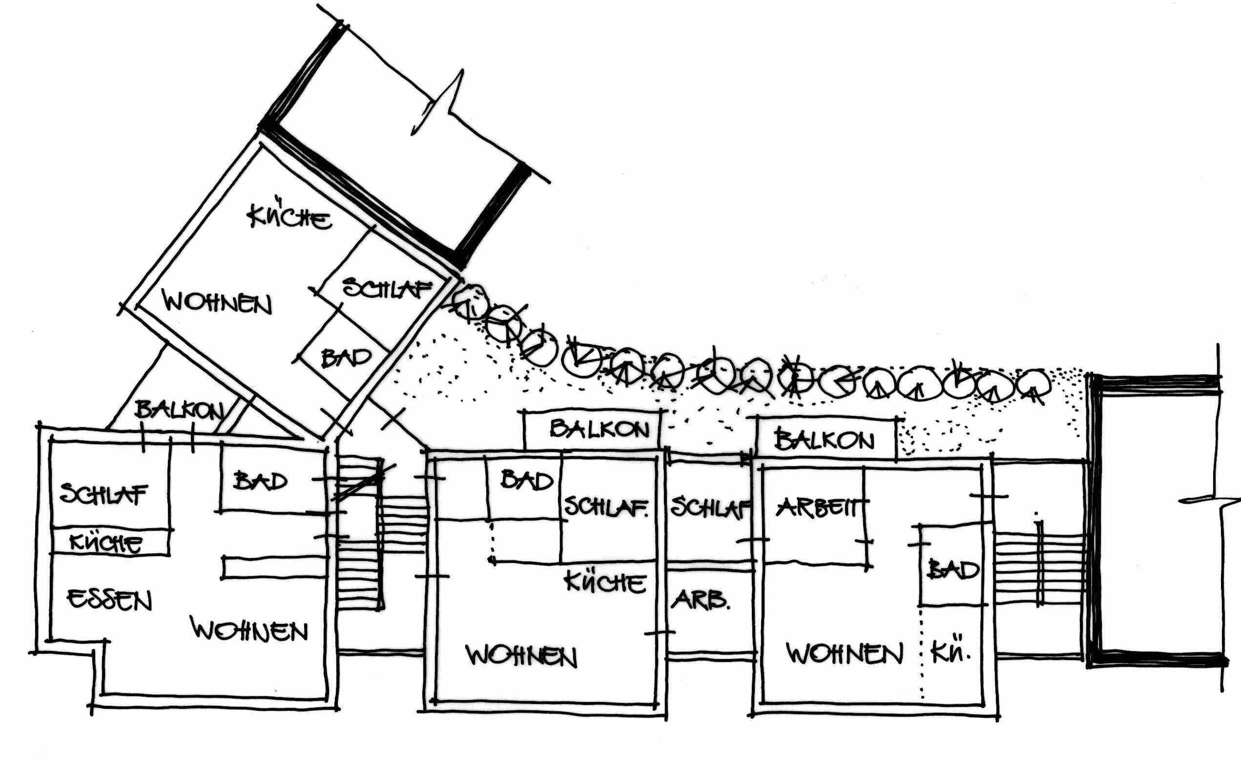
Obergeschossgrundriss

 

 

 

gleiche Größe der symmetrisch

an den Giebelseiten angeordneten Räume

(außer bei Trennung Arbeitszimmer und

Hauswirtschaftsraum im EG)

= Flexibilität der Funktionen

Erdgeschossgrundriss

 

 

 

 

zentrale Anordnung von Bad, Küche 

und Technik (Heizung, Lüftung usw.) 

direkt übereinander

 

 

 

 

 

Laubengang als Zitat 

traditioneller regionaler Bauweise

auf der Südseite

= zusätzliche Verschattung,

grenzt  an einen breiten 

Schiebeflügel der Glasfassade,

der die „Empore“ zum

überdachten Balkon werden lässt

 

 

 

 

 

 

 

 

 

 

 

 

 

Innovative Heiz- und Lüftungstechnik:

Warmwasserspeicher automatisch gespeist

- von einer Erdgas-Brennwert-Therme

- der 7.69 m² großen thermischen Solaranlage

-  Holz-Kamin mit Heißwasseraufsatz

 

Gebäude mit kontrollierter Lüftungsanlage;

Lüftungsgerät mit Erdwärmetauscher;

Lüftung dient auch zur Kühlung im Sommer-

eingeblasene Frischluft ist im Sommer um

ca.:10 Grad C kühler als Außentemperatur;

Energieverbrauch:

weniger als 60 kWh pro Jahr u. m² Nutzfläche;

Die Kombination der Solaranlage

mit einer Biomasseanlage

wurde vom Freistaat Thüringen gefördert.

Innovative Hypokausten- Warmluft- Heizung

Prinzip:

2 getrennte Luftschichten vor der Außenwand,

die im Fußboden- und Deckenbereich

miteinander verbunden sind;

in raumseitig inneren Schicht verläuft Heizleiste

mit Alu-Lammellen, aufströmende Warmluftluft

erwärmt die raumseitige Gipskartonplatte.

                                                                                                                   
Barrierefreies Bauen

 

Eingang Wohnanlage in Weimar

                                                                                                                   
Bauüberwachung

 

Sanierung von 
Wohn- und Geschäftshaus in Jena

 

                                                                                                                   
Betreutes Wohnen

Umbau eines Plattenbausegmentes des ehemaligen Altenpflegeheimes zum "Service Wohnen" in Weimar

 

 

 

                                                                                                                   
Bürogebäude

 

Verwaltungsgebäude  in Weimar

                                                                                                                   
Cafeteria

 

in einem Seniorenzentrum in Weimar 

                                                                                                                   
Denkmalpflege

 

Wohn- und Geschäftshaus in Jena, Erker

 

 

 

 

 

 

Thüringer Denkmalschutzpreis 2011

IMAGINATA in Jena, Veranstaltungsgebäude

 

 

 

Wohnstallhaus in Schmerfeld

 

 

                                                                                                                   
Doppelhäuser

Wohnhaus in Niederwiesa, Chemnitzer Land

                                                                                                                   
Dorferneuerung

 

Dorferneuerung in Schöten

 

 

 

 

 

 

 

Dorferneuerung in Nohra

 

 

 

 

 

 

 

                                                                                                                   
Einfamilienhaus

 

Wohnhaus in Bergern

 

 

 

 

 

 

 

 

Wohnhaus in Berlin

 

 

 

 

                                                                                                                   
Entwürfe

 

Entwürfe für Neubauten und Umbauten

Visualisierung
 

Skizzen

 

                                                                                                                   
Fassade

 

 

Individuelle Fassadengestaltung für Neubauten

                                                                                                                   
Fachwerkgebäude

 

Ferienwohnungen  Wormstedt 

                                                                                                                   
Fertighaus

 

Entwürfe, Bauanträge und Kundenbetreuung für Fertigprojekte und -häuser

 

                                                                                                                   
Gaststätte

Entwurf für eine Imbissstube


Speiseräume, Küchen und Foyers im Zusammenhang mit den Projekten

                                                                                                                   
Geschäftshaus

 

 

Anerkennung Fassadenpreis Jena 2006 

Sanierung

von Wohn- und Geschäftshäusern

in Weimar und Jena

                                                                                                                   
Grünanlagen

 

Grünanlagenplanung

Altenpflegeheim in Weimar

 

 

 

 

 

 

 

 

 

 

Sinnesgarten

-Sehen und Hören-

 

 

 

 

Sinnesgarten

- Hochbeete zu Therapiezwecken 

mit Blumen- und Kräutergarten

zum Sehen- Fühlen- Riechen und Schmecken

 

 

 

                                                                                                                   
Holzrahmenbau

Realisierter Holzrahmenbau in Bergern, Wohnhaus

 

 

 

 

 

 

 

Anerkennung Thüringer Holzbaupreis 2007

Realisierter Holzrahmenbau in Weimar

 

 

 

 

 

 

Detail Holzrahmenbau 
                                                                                                                   
Innenarchitektur

Wohnhaus, Küchenstudio,  Kindertagesstätte  

 

Foyer in einem Seniorenzentrum in Weimar

 

 

Interieur im Einfamilienhaus

 

                                                                                                                   
J
                                                                                                                   
Kindertagesstätte

 

Gruppenräume in einer sanierten und umgestalteten Kindertagesstätte  in Weimar

 

 

 

 

 

 

 

 

 

 

 

 

 

 

Sanitärraum in einer sanierten Kindertagesstätte  in Weimar

 

 

 

 

 

 

Studie zur Sanierung und Umgestaltung einer Kindertagesstätte in Weimar
                                                                                                                   
chen- und Badstudio

Umbau- und Interieurstudie für ein Küchen- und Badstudio  in Jena

Fotorealistische Visualisierung

                                                                                                                   
Lagerhalle

Lagerhallen im Zusammenhang mit Produktionsbauten der Landwirtschaft

                                                                                                                   
Lehmbau

 

 

Experimentelles Wohnhaus in Bergern

                                                                                                                   
Mehrfamilienhaus

 

 

 

Zahlreiche Sanierungen und Umbauten von Mehrfamilienhäusern in Weimar

 


 

Visualisierungen Neubau in Schleiz

 

 

 

 

                                                                                                                   
Modellbau

 

Darstellung der Entwurfsideen anhand von maßstäblichen Modellen

Wohn- und Geschäftshaus in Erfurt

 

 

 

Seniorenzentrum in Weimar

 

 

 

 

 

 

 

                                                                                                                   
Modernes Bauen

 

Einfamilienhaus "Am Horn" in Weimar

                                                                                                                   
Modernisierung

Ca. 60% aller realisierten Vorhaben sind Modernisierungen und Umgestaltungen bestehender Gebäude

                                                                                                                   
Museumsgebäude

 

Wettbewerb für Lern- und Dokumentationszentrum, KZ-Gedenkstätte Mittelbau Dora

                                                                                                                   
Niedrigenergiehaus

 

Anerkennung Thüringer Holzbaupreis 2007

Einfamilienhaus in Weimar

 

 

 

Visualisierungen 

 

 

 

 

Einfamilienhaus

 

                                                                                                                 
Ökologisches Bauen

 

Experimentalbau in Bergern, Einfamilienhaus

 

 

 

 

 

 

 

 

 

                                                                                                                   
Pflegeheim

 

Seniorenzentrum in Weimar 

 

 

 

 

 

 

Pflegetresen in einem Seniorenzentrum in Weimar

                                                                                                                   
Plattenbausanierungen

 

 

Wohngebäude in Weimar (WBS70+)
Fassadensanierung, Umbau von Balkonen, 

 

 

 

 

neue Balkonanlage

 

 

 

Visualisierung

Eingangsgestaltung

 

 

                                                                                                                  
Plätze

Städtebaulicher Ideenwettbewerb zur Platzgestaltung in Schleiz

                                                                                                                  
Produktionsgebäude

Neubau einer Produktionshalle in Erfurt

 

 

 

 

                                                                                                                  
Querdenken

 

Vogelnest  


                                                                                                                  
Reihenhäuser

 

Studie Wohnhaus

 

 

                                                                                                                  
Restaurierung

Restaurierung von Fassaden im Zusammenhang mit Sanierungsmaßnahmen

                                                                                                                  
Sanierung

 

Ca. 60 % aller realisierten Vorhaben sind Sanierungen, Modernisierungen und Umgestaltungen bestehender Gebäude

 

 

 

 

IMAGINATA Jena
Umbau eines ehemaligen Umspannwerkes 

zum Veranstaltungs- und Ausstellungsgebäude 

 

 

 

                                                                                                                  
Solaranlage

 

Photovoltaikanlage in Weimar

 

 

 

                                                                                                                  
Skizzen

 

Entwurf Mehrfamilienhausanlage in Schleiz

                                                                                                                  
Studien

 

Studie zur Errichtung eines Bürogebäudes in Ilmenau

 

 

Studie zur Sanierung und Umgestaltung einer Kindertagesstätte in Weimar

                                                                                                                  
Tourismus

Entwurfsplanung für ein touristisches Begegnungszentrum in Frauenwald (Information, Saal, Freizeit, Vereinszimmer, Bibliothek)

                                                                                                                  
U
                                                                                                                  
Veranstaltungsgebäude

 

IMAGINATA Jena
Umbau eines ehemaligen Umspannwerkes 

zum Veranstaltungs- und Ausstellungsgebäude 

 

 

 

 

 

 

 

 

                                                                                                                  
Verwaltungsgebäude

 

Neubau Verwaltungsbau in Weimar, Visualisierung

 

  

 

 

 

Wettbewerb zum Neubau des technischen Rathauses in Weimar

 

 

 

 

 

weitere Studien

 

 

 

                                                                                                                  
Visualisierungen

 

Zahlreiche fotorealistische Visualisierungen für eigene und fremde Entwurfsarbeiten

 

 

Wettbewerb 2004, Thu Thiem, Vietnam 

 

 

 

Studie zur Errichtung eines Bürogebäudes in Weimar

 

 

 

 

 

                                                                                                                  
Volkshaus

Sanierungs- und Umgestaltungskonzept für das Volkshaus in Meiningen

                                                                                                                  
Werbung

 

IMAGINATA- Kugel

Projekt im Rahmen der Initiative "denkmal aktiv"

 

                                                                                                                  
Wettbewerbe

 

städtebaulicher Wettbewerb 

Residenzstadt Neustrelitz 2006, 3. Preis

Städtebauliche Visualisierung 

 

 

 

 

 

 

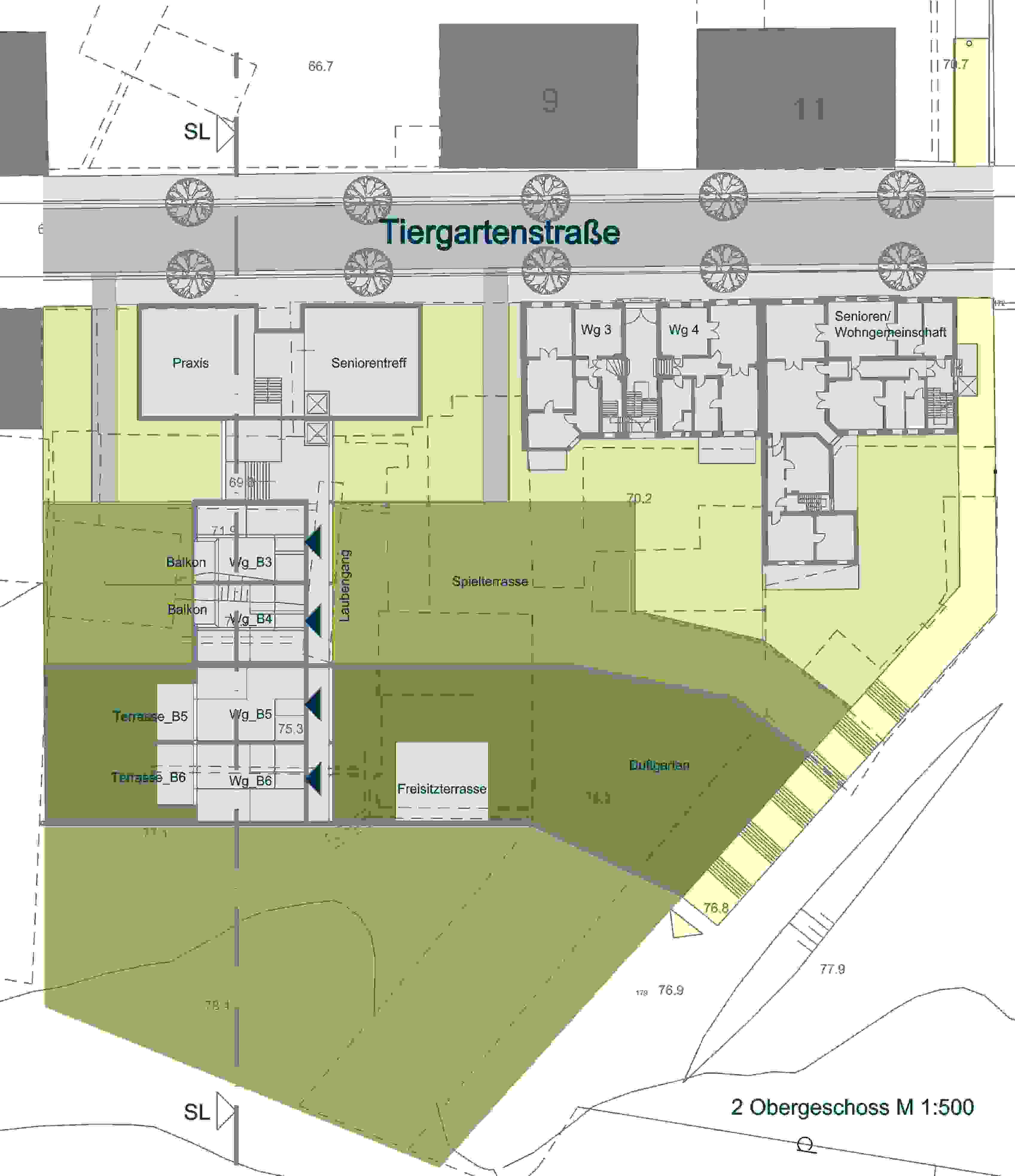
Lageplanausschnitt Ebene 2.OG

 

 

 

 

 

 

Skizze

 

 

 

 

 

 

 

 

 

 

 

 

 

 

 

 

 

Wettbewerb für Lern- und Dokumentationszentrum, KZ-Gedenkstätte Mittelbau Dora

 

 

 

 

 

Weitere städtebauliche Wettbewerbe 

und  Wettbewerbe für Gebäude und Freianlagen 

 

 

                                                                                                                  
Wohnhaus

Einfamilien- und Mehrfamilienhäuser, Betreutes Wohnen, 
Entwürfe und Realisierungen

Visualisierung Neubau in Schleiz

 

 

 

 

 

 

Einfamilienhaus in Berlin

                                                                                                                  
Wir
                                                                                                                  
X   Wegkreuzung
                                                                                                                  
Y   Richtungsänderung
                                                                                                                  
Z - Achse